Here at Bespoke Brewing Solutions, we like to share things. Our team believes sharing is caring.
We share our lunches in the office. We share tips about the best place to buy sushi.
And you may have noticed that we like to share our knowledge.
Our brewing experts are excited to share their knowledge on brewery electrical utility requirements!
Once a client’s equipment layout and design have been locked in, we can start working on the different utilities that will be whipping around their brewery. This includes:
- Electrical
- Steam
- Liquor
- Glycol
- Gas (Compressed Air, Oxygen, CO2)
In this blog, which is the first part of our utilities series, we will be looking at what to consider for your brewery’s electrical requirements.
Volts and Hertz
When we start a project, one of the first questions we ask is to confirm the following:
Single-Phase Electrical Voltage:
Three-Phase Electrical Voltage:
Hertz:
Certification:
This is absolutely critical. We order all of our equipment (motors, pumps, etc) and design our control panels to work with the required voltage(s) and hertz. (Note that these differ around the world.)
For instance, we have produced three-phase equipment to work on 208V and 480V at 60Hz for the US and 415V at 50Hz for Australia.
Every country also has regulations that require certain certifications either on the components used or the equipment itself. This can range from CE for Europe to UL in the US. This can be especially difficult in the US if you are in a region where UL certification is a requirement, so it is best to check with the local authority.
If this information is not communicated correctly, you could end up with unusable equipment, which is a very costly mistake.
Pro Tip: When looking for possible brewery sites, make sure to ask if there is three-phase electrical power running into the building and how much there is. This is because pumps and motors work better running on three-phase electrical, especially as they increase in power.
Once this is determined, you should confirm the electrical loads for each piece of equipment to make sure the site has enough juice. This is a critical gate check for location consideration.
Electrical Layout
In our electrical layout drawing (provided for all projects), we list all the equipment that will be drawing power, and the wattage required. From there, the local electrician(s) can help confirm if you have enough juice (current) coming into the building to meet the demand.
If not, you might need to run more power to the location, which can be costly. If you have equipment coming from other manufacturers, we are more than happy to incorporate it into our drawings.
For every brewery project we have done thus far, we have directly worked with the electrician(s) to include as much detail as possible in the drawing to indicate placement, connection type, and any special requirements.
We want to make sure they are comfortable with the equipment. Electrical wire coloring differs around the world!
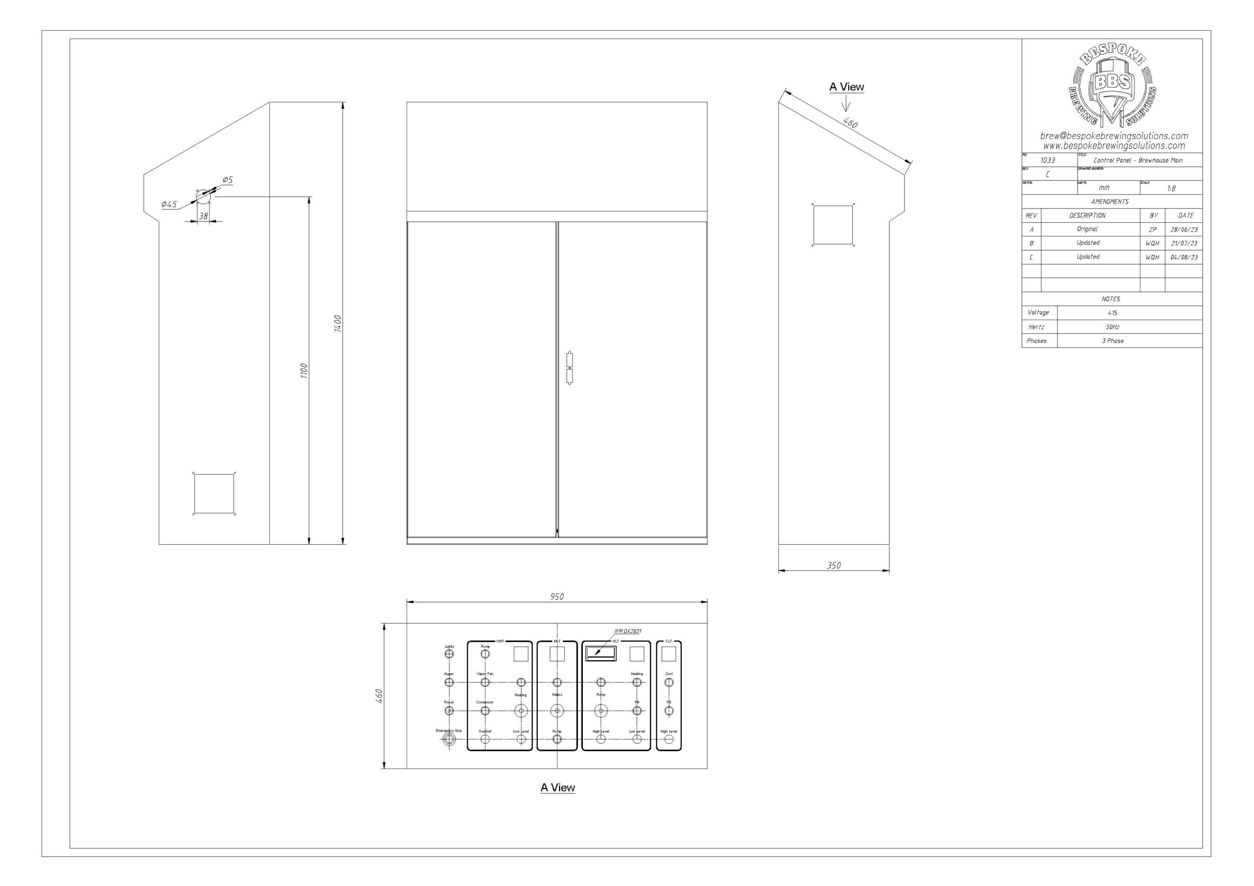
Electrical Design Drawings
We also provide design drawings for control cabinets for brewhouses, mobile pumps, CIP carts, etc.
This includes the button configuration with labeling for the different components on the board to prevent confusion about what will be controlled from where. We take the labels seriously, as local nomenclatures differ around the world for brewing equipment.
We spend a lot of time with clients to make sure the buttons and components are laid out and labeled correctly for efficient and mistake-free brewing. For instance, the grouping of the different vessel controls in relation to the control panel while a brewer is using it.
Control Panel Wiring Diagrams
Our electrical team will also prepare a wiring diagram for the different control panels, which will ship with an order.
The electrical diagrams will help the local team to plan out not only their route for the power cables around the brewery, but also need to consider electrical wiring for the different components around the brewery (such as pumps, motors, control valves, sensors, etc.)
As an example, the brewery’s electrical cabinet will need to be wired to all components of the brewhouse. If this includes the HLT and it is located on the other side of the brewery, then cables will need to be run for the pump, control valves, and thermocouples.
Also, since the team needs to hook up all the components on the brewhouse for testing, we offer the wiring for a small fee to make your electrician’s life easier and save coin.
A Bespoke Solution
There is a lot to think about concerning the electrical requirements of your brewery.
This is because you also need to consider both power and control, which should all be identified ahead of time.
We are always learning – and we’d be lying if we said we have not had any issues! But we are continuously improving after each project.
We know the dos and don’ts! Let us bring this experience into your project to help it go smoothly.
Get in touch with us for more information.
